Wenn Sie eine Molteni Küche im Abverkauf suchen, bei der Design, Materialqualität und Geräteausstattung bis ins Detail stimmen, ist diese Molteni Intersection Küche eine außergewöhnlich starke Gelegenheit.
Wir bieten Ihnen mit diesem einmaligen Angebot eine sehenswerte Premiumküche des Designers Vincent Van Duysen. Entdecken Sie SuperWhite-Marmor, Sunrise-Eiche, matten Perl-Lack, Glasdetails und eine Premium Geräteausstattung von Miele und Liebherr.
Bei Möbel Braum beraten wir Sie konkret zu Aufbau, Materialien, Gerätekonzept, Stauraum, Nutzung und zur Frage, ob diese Küche wirklich zu Ihrem Raum und Ihrem Anspruch passt. Diese Küche können Sie im Molteni Flagship Store in Frankfurt live erleben.
Darüber hinaus führen wir weitere Molteni Küchen (früher Dada Küchen) im Sortiment und haben aktuell eine zweite Molteni Abverkaufsküche für Sie als Outlet-Angebot.
(Die auf den Bildern gezeigten Barhocker sind nicht im Angebot enthalten. Um die Sicherheit und Qualität des Produkts zu gewährleisten, ist eine professionelle Montage erforderlich. Dieser Service ist nicht im Preis inbegriffen und wird separat in Rechnung gestellt.)


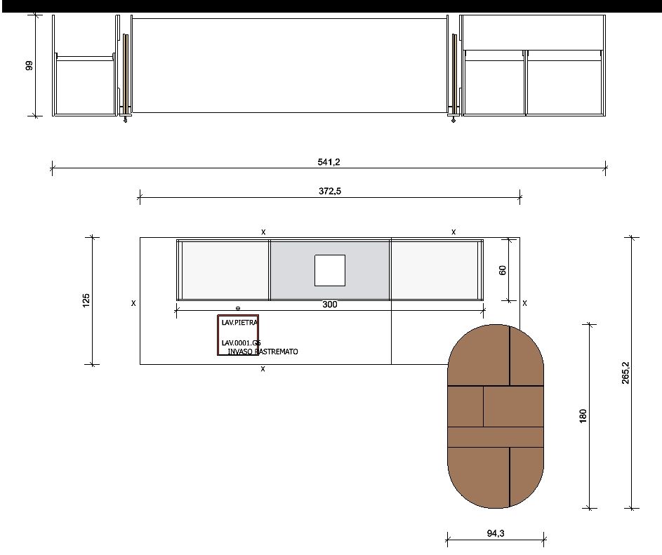
Diese Küche ist als große, repräsentative Komposition angelegt. Sie besteht aus zwei Hauptzonen: einem Küchenblock und einer großzügigen Insel mit angeschlossenem Snack-Tisch.
Insgesamt ist die Planung auf etwa 550 cm Breite, 500 cm Tiefe und 260 cm Höhe ausgelegt.
Hinzu kommt eine Designer-Hängewand mit 300 cm x 60 cm x 125 cm, in die die Dunstabzugslösung integriert ist.
Es handelt sich hierbei nicht um eine kompakte Küchenlösung, sondern um eine große Designküche für offene Wohnräume, mit klaren Funktionszonen, großzügigen Laufwegen und einer starken architektonischen Präsenz.
Für Käufer, die eine Küche mit Kochinsel und gleichzeitig einen wohnlichen Kommunikationsbereich wünschen, ist genau diese Aufteilung ein starkes Argument.
Die Materialauswahl ist exakt das, was man in dieser Preisklasse erwartet: hochwertig, kontrastreich und beständig. Verarbeitet sind lackiertes Holz, Holz, Eiche, Glas und Kristall; die gezeigte Ausführung kombiniert Sunrise-Eiche, matten Perl-Lack, Klarglas und SuperWhite-Marmor.
Die Fronten und Schiebetüren des Küchenblocks sind in mattem Perl-Lack und Sunrise-Eichenfurnier ausgeführt. Passende Einlagen und Zierleisten bringen Wärme und Tiefe in die Planung. Der Marmor prägt Rückwand, Insel und integrierte Spülen optisch sehr stark und verleiht der Küche genau diese einmalige Wirkung, für die die Intersection steht.
Für Sie als Käufer heißt das: Sie bekommen keine neutrale Standardküche, sondern eine Ausführung mit echter Identität. Wer gezielt nach einer Küche mit Marmor, einer Molteni Küche in Eiche und Lack oder einer Luxusküche mit Glasdetails sucht, findet hier eine perfekte Kombination.
Auch farblich ist diese Küche in Beige, Transparent und Zinn klar positioniert. #
Dadurch wirkt die Küche hochwertig und elegant, ohne kühl zu erscheinen. Gerade in großen Wohnküchen ist diese Balance wichtig: Die Küche soll Präsenz haben, aber den Raum nicht überladen.
Wenn Sie eine exklusive Küche in Beige, eine Designküche mit Glas und Metallrahmen oder eine zeitlose Premiumküche suchen, ist diese Farb- und Materialkomposition sehr überzeugend.

Ein zentraler Kaufgrund dieser Küche ist die integrierte Premium-Ausstattung. Zum Angebot gehören:
Damit ist die Ausstattung nicht allgemein „hochwertig“, sondern technisch auf höchstem Niveau. Die Miele-Geräte sind aus dem oberen Einbaugeräte-Segment, die beiden Liebherr-Monolith-Geräte gehören zu den großformatigen Premium-Einbaugeräten des Herstellers.
Für Käufer, die eine Molteni Küche mit Miele Geräten oder eine Luxusküche mit Liebherr Monolith suchen, ist das ein sehr handfester Vorteil.
Der verbaute Backofen ist der Miele H 7460 BP in Graphitgrau. Profitieren Sie unter anderem von der Pyrolyse-Ausstattung, Klimagaren, TasteControl, DirectSensor und Miele@home. Das ist relevant, weil genau diese Funktionen in einer Küche dieser Klasse den Unterschied machen.
Pyrolyse reduziert den Reinigungsaufwand deutlich. Klimagaren unterstützt Backergebnisse bei Brot, Braten und Gebäck durch Feuchtigkeitszugabe. TasteControl hilft dabei, ein Übergaren nach Programmende zu vermeiden.
Wer eine Designküche mit Pyrolyse-Backofen sucht, bekommt hier also kein Basisgerät, sondern ein Modell mit starkem Funktionsumfang.
Beim zweiten Gargerät handelt es sich um den Miele DGM 7440 in Graphitgrau, also um einen Dampfgarer mit Mikrowelle. Hier überzeugen DualSteam-Dampftechnologie, Quick & Gentle, Automatikprogramme, DirectSensor sowie die Kombination von Dampf mit Mikrowelle.
Für anspruchsvolle Käufer ist das deshalb interessant, weil dieses Gerät mehrere Funktionen in einem sauberen Einbaugerät bündelt: schonendes Dampfgaren, schnelles Erwärmen und flexible Kombinationsnutzung. Gerade wenn Sie eine Küche suchen, die nicht nur gut aussieht, sondern im Alltag sehr vielseitig funktioniert, ist dieses Gerät ein echtes Plus.

Der Geschirrspüler ist ein Miele G 7280 SCVi, also ein vollintegrierter Geschirrspüler. Freuen Sie sich auf Energieeffizienzklasse A, eine 3D-MultiFlex-Schublade, QuickPowerWash und die ComfortPlus Korbgestaltung.
Das ist für eine Küche in dieser Klasse genau die richtige Positionierung: vollintegriert für ein ruhiges Frontbild, effizient im Verbrauch und mit einem Innenraumkonzept, das im Alltag wirklich komfortabel ist.
Wer eine Luxusküche mit vollintegriertem Miele Geschirrspüler sucht, bekommt hier ein Modell, das optisch zurücktritt und funktional überzeugt.
Das Kochfeld ist das Miele KM 7897-1 FL Diamond, ein Induktionskochfeld mit Vollflächeninduktion und DiamondFinish. Gerade auf einer großzügigen Insel ist das ein relevantes Detail. Vollflächeninduktion schafft Flexibilität bei der Platzierung von Kochgeschirr, und DiamondFinish ist bei Miele die Oberfläche für erhöhte Widerstandsfähigkeit und langanhaltende optische Qualität.
In der Praxis passt dieses Modell sehr gut zur architektonischen Handschrift der Intersection: klare Fläche, ruhige Optik, starke Funktion. Wenn Sie eine Küche mit Premium-Induktionskochfeld und bewusst reduzierter Gestaltung suchen, ist dieses Gerät exakt passend gewählt.


Bei der Kühl- und Gefriertechnik setzt diese Küche auf zwei Geräte aus der Liebherr Monolith-Serie.
Für Sie als Käufer bedeutet das: sehr großzügige Kühl- und Gefrierkapazität, ein klarer Premiumanspruch und Geräte, die optisch wie technisch zu einer großen Molteni Küche passen.
Neben Design und Geräten überzeugt diese Küche auch im täglichen Gebrauch.
Das sind keine Nebendetails, sondern echte Kaufargumente für Menschen, die ihre Küche intensiv nutzen und dabei Ordnung, gute Arbeitsabläufe und hochwertige Innenausstattung erwarten.


Wenn Sie neben der Intersection noch eine zweite Molteni Küche vergleichen möchten, bieten wir Ihnen zusätzlich den Molteni Ratio Essenza Küchen Abverkauf an.
Wir führen beide Küchen aktuell als Outlet- beziehungsweise Musterküchen-Angebote. Die Ratio Essenza ist ebenfalls von Vincent Van Duysen entworfen und arbeitet mit einer materialbetonten, architektonischen Formensprache, bei der der Korpus besonders stark in den Vordergrund rückt.
Für Sie ist das interessant, wenn Sie innerhalb des Molteni Kosmos zwischen zwei sehr hochwertigen, aber gestalterisch unterschiedlich akzentuierten Küchen wählen möchten.


Diese Molteni Intersection Küche im Abverkauf ist die richtige Wahl für Käufer, die eine klar definierte Premiumküche mit Premium Ausstattung, außergewöhnlicher Materialität und starker architektonischer Präsenz suchen.
Bei Möbel Braum beraten wir Sie genau so, wie es bei einer Küche dieser Klasse nötig ist: konkret, präzise und mit Blick auf Ihren Raum, Ihre Nutzung und Ihre Erwartungen. Wenn Sie eine Molteni Küche kaufen, eine Luxusküche mit Miele und Liebherr suchen oder eine Designküche in Frankfurt live erleben möchten, begleiten wir Sie gern persönlich.
Nutzen Sie diese Abverkaufschance, vergleichen Sie auf Wunsch auch die Ratio Essenza und sichern Sie sich eine Küche, die nicht nur repräsentativ aussieht, sondern in jedem Ausstattungsdetail Substanz hat.
